2010 Wettbewerb Bau einer Bibliothek im Köckhaus 1++ 2010 Wettbewerb Bau einer Bibliothek im Köckhaus 1++ 2010 Wettbewerb Bau einer Bibliothek im Köckhaus 1++

2010 Wettbewerb Bau einer Bibliothek im Köckhaus

Bauaufgabe: Bau einer Bibliothek

Standort: Innichen

BauherrIn: Gemeinde Innichen

Architektur: Dr. Arch. Bruno Rubner (mit W. Franz)

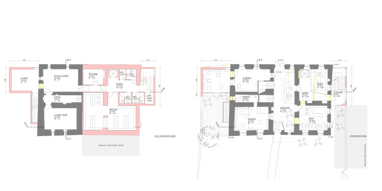
Das Köckhaus ist in der heutigen Ausformung ein zweigeschossiges Mittelflurgebäude aus dem 16. Jahrhundert mit barocken Stubeneinbauten sowie einer späteren Ausbauphase, die sich in Malereien im Ostteil des Obergeschosses sowie vor allem an der Veränderung der Fensteröffnungen und der Fassade markiert. Dieses historische Gebäude ist ein Denkmal und daran soll auch das Projekt ausgerichtet werden. Nicht das Denkmal wird an die Nutzung angepasst, sondern die Nutzung an das Denkmal. Sie wird so organisiert, dass das Gebäude nur an marginalen Stellen verändert werden muss. Die Nutzung als öffentliche Bibliothek soll ohne größere Veränderungen der Substanz ermöglicht werden. Die Eingangstüre im Süden bleibt erhalten ebenso wie der ebenerdige Zugang an der Nordseite des Gebäudes. Der Aufzug in das Obergeschoss wird in den rückwärtigen Ostteil des Gebäudes gesetzt. Er ist dort ohne zusätzliche Einbauten für Menschen mit Behinderung erreichbar.