2014 Wettbewerb Altersheim Taufers (3. Preis) 1++ 2014 Wettbewerb Altersheim Taufers (3. Preis) 1++ 2014 Wettbewerb Altersheim Taufers (3. Preis) 1++ 2014 Wettbewerb Altersheim Taufers (3. Preis) 1++

2014 Wettbewerb Altersheim Taufers (3. Preis)

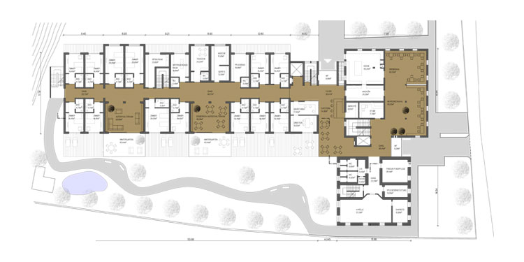
Bauaufgabe: Erweiterung des Altersheimes

Standort: Sand in Taufers

BauherrIn: Gemeinde Sand in Taufers

Architektur: Dr. Arch. Bruno Rubner

Das bestehende Altersheim ist Teil der großen Gebäudekomplexe im baulichen Kontext der Pfarre von Taufers und dominiert als viergeschossiges Volumen die kleinteilige Wohnbebauung der Umgebung. Die gewünschte Erweiterung des Wohn- und Pflegeheimes ist unter Ausnutzung der Bebauungsmöglichkeit der bestehenden Bauparzelle und unter Einhaltung der bestehenden Parkplätze ausschließlich im Westen des Bestandes möglich. Der neue Baukörper dockt an den Bestand an und entwickelt sich als klares, ruhiges, dreigeschossiges Bauelement bis an die mögliche Bebauungsgrenze, definiert durch die bestehende Böschung. Der Entwurf zur Erweiterung des Altersheimes steht im Kontrast zur historisierenden Architektur des Bestandes, zeigt sich bewusst zeitgemäß, reagiert aber dennoch auf den bestehenden Baukörper in Bezug auf Masse und Fensteröffnungen. Dem bestehenden Baukörper wird ein geradliniges, dreigeschossiges, formal zurückhaltendes Volumen an die Seite gestellt. Im Erdgeschoss, im 1. Obergeschoss und im 2. Obergeschoss besteht eine behindertengerechte Verbindung zum Bestand.